見学予約・お問い合わせはこちら

096-388-1822

9:00-17:30 水曜定休日

アネシスオーナー様はこちらから
(メンテナンスのご相談等)

0120-24-3810

【建売住宅】菊陽町原水10号地

【建売住宅】菊陽町原水10号地

3LDK+SIC+WIC

菊陽北小学校|菊陽中学校

見学予約をする 資料請求をする

CONCEPT

収納する場所を習慣化、広々すっきり空間玄関には、大容量のシューズインクローゼット。家族みんなの靴や上着、アウトドアグッズもすっきり収納でき、いつも綺麗な玄関を保てます。各部屋にも充実した収納スペースを設け、使う場所に合わせた収納方法で、整理整頓された暮らしを実現。帰るたびに心地よい”ただいま動線”玄関からリビングへ、そしてキッチンへと続く動線は、毎日の生活をスムーズに。帰宅後すぐに荷物を置いたり、手洗いをしたり、家事動線を考慮した設計で、快適な暮らしをサポートします。家族の時間が広がる、開放的なLDKリビング、ダイニング、キッチンが一体となった開放的なLDKは、家族みんなが自然と集まり、思い思いの時間を過ごせる空間。大きな窓から差し込む陽光が、明るく開放的な雰囲気を演出します。

PLAN

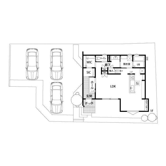
【建売住宅】菊陽町原水10号地

【建売住宅】菊陽町原水10号地

敷地面積226.11㎡(68.39坪)│延床面積111.78㎡(33.81坪)

販売価格 4,468万円(税込)

POINT

  • ポイント画像

    【オンリーワンの外観デザイン】
    「どこにでもある家」ではなく「この場所にしかない家」一棟一棟、土地の特性を活かした設計と街並みに映える洗練された外観をデザインしています。

  • ポイント画像

    【暮らしやすさを追求したプロの設計】
    プロの設計士が、家事楽な間取りから家具・照明に至るまで一貫してデザイン。注文住宅で培った『あったらいいな』を建売住宅で形にしています。

  • ポイント画像

    【家具付き】
    プロのインテリアコーディネーターによって選定・配置された家具は、空間に合わせた統一感のあるデザイン。注文住宅を多く扱うアネシスだからこそ建売住宅でも理想の暮らしが叶えられる。

  • ポイント画像

    【メンテナンスサポートの充実】
    定期点検、60サポート(最長60年の保証制度)、24時間オーナー様専用ダイヤル、災害対応など、住んだ後も安心して暮らしていただけます。

見学予約をする 資料請求をする

周辺環境

  • 菊陽北小学校

    菊陽北小学校約1,700m

  • 菊陽中学校

    菊陽中学校約3,350m

  • あおぞら保育園

    あおぞら保育園約900m

  • なみかわ小児科

    なみかわ小児科約740m

  • 室郵便局

    室郵便局約1,570m

  • 肥後銀行 大津支店

    肥後銀行 大津支店約2,140m

  • 熊本銀行 大津支店

    熊本銀行 大津支店約2,200m

  • スーパー・キッド 大津店

    スーパー・キッド 大津店約850m

  • セブンイレブン 大津曙団地前店

    セブンイレブン 大津曙団地前店約1,140m

  • メガセンタートライアル 大津店

    メガセンタートライアル 大津店約1,270m

  • HIヒロセスーパーコンボ 大津店

    HIヒロセスーパーコンボ 大津店約1,300m

物件概要

●団地名称:菊陽町原水●所在地:菊池郡菊陽町大字原水字古閑原●交通:都市バス 古閑原バス停徒歩約9分●総区画数:11区画●電気:九州電力●ガス:プロパンガス●水道:公共上水道●排水(汚水・雑排水):公共下水道●排水(雨水):側溝●地目:田●都市計画:市街化調整区域(集落内開発区域)●用途地域:なし●建ぺい率:70%●容積率:200%●道路幅員:北側:約6.0m(菊陽町道)、開発道路:約6.0m(菊陽町帰属予定)●6~11号地売主:株式会社アネシス●他号地 販売代理:株式会社アネシス、売主:龍邦開発株式会社●諸費用:水道加入金 81,400円(一時金)、下水道受益者負担金:1㎡あたり340円(一時金)●備考:境界工事費別途、杭工事費。建築基準法にもとづく延面積、施工床面積と登記簿による延面積、施工床面積とは異なる場合があります。

MAP

※詳しい場所はお問い合わせください。

タイトル装飾

とってもお得な見学予約の
3つのメリット

タイトル装飾

  • お得な価格で購入できる

    1.

    ご都合に合わせて
    混雑を気にせずご来場できます。

  • 家具一式付き!

    2.

    聞きたい事やご相談内容を
    事前に伝えられます。

  • 実際の生活イメージができる

    3.

    待ち時間なく優先的に
    ご案内できます。

見学予約はこちら

【建売住宅】菊陽町原水10号地
の見学予約です。

お電話でのお問い合わせ
096-388-1822096-388-1822
[営業時間]9:00~17:30 水曜定休日

入力内容をご確認の上、送信ボタンを押してください。

お名前必須

電話番号必須

メールアドレス必須

ご年齢必須

見学希望日時必須


お問い合わせ

プライバシーポリシー」に同意の上、
入力内容を確認しました。

CONTACT

お電話でのお問い合わせ
096-388-1822 096-388-1822
[営業時間]9:00~17:30 水曜定休日

電話をする

見学予約

資料請求・お問合せはLINEが便利!友だち追加はこちら 資料請求・お問合せはLINEが便利!友だち追加はこちら