【プロが解説】資材高騰・ナフサショックの影響は?今、モデルハウス購入が最強の選択肢になる理由
スタッフコラム・ブログ2025.10.02
皆さまこんにちは!巷では、「インスタグラマー」「ユーチューバー」と言われている方が多々いますが、いつしか「ブロガー」になってしまいそうな期待の新人でおなじみ平川です。
それにしても、最近なぜだか雨が多かったですよね…私の髪の毛そこまで直毛じゃないので、もうおかげさまでくるくるしちゃいます🌀
ここ最近は夜だと涼しくなってきましたが、日中はまだまだ暑いですし皆様も十分お気をつけくださいね!私も気をつけます!💦
さてさて、今回のブログは以前好評を頂いた「設計士インタビュー」シリーズの第2弾となります!
今回は、住宅密集地にありながら、デザイン性と暮らしやすさを見事に両立させたお住まいについて、設計を担当された成松さんにお話を伺います🎤
コンセプトは
「どんな土地でも、家族が心地よく集える光の空間は創れる」
「住宅密集地だから、日当たりや開放感は諦めるしかない…」
そんな風に思っていませんか?今回ご紹介するモデルハウスは、そんな常識を覆す「どんな土地でも、家族が心地よく集える光の空間は創れる」というコンセプトから生まれました。
黒を基調としたシックな外観が印象的ですが、その内側には驚くほどの開放的な空間が広がっているんです。
果たして、どうすればそんな家が実現できるのか!? 設計を担当された成松さんと一緒に、その秘密を探っていきましょう!
設計のこだわり①
敷地を最大限に活かす、考え抜かれた外観と設計
平川: 成松さん、本日はよろしくお願いいたします。まず、こちらの住宅は「敷地延長」の土地に建てられているとのことですが、設計で特に意識された点はありますか?
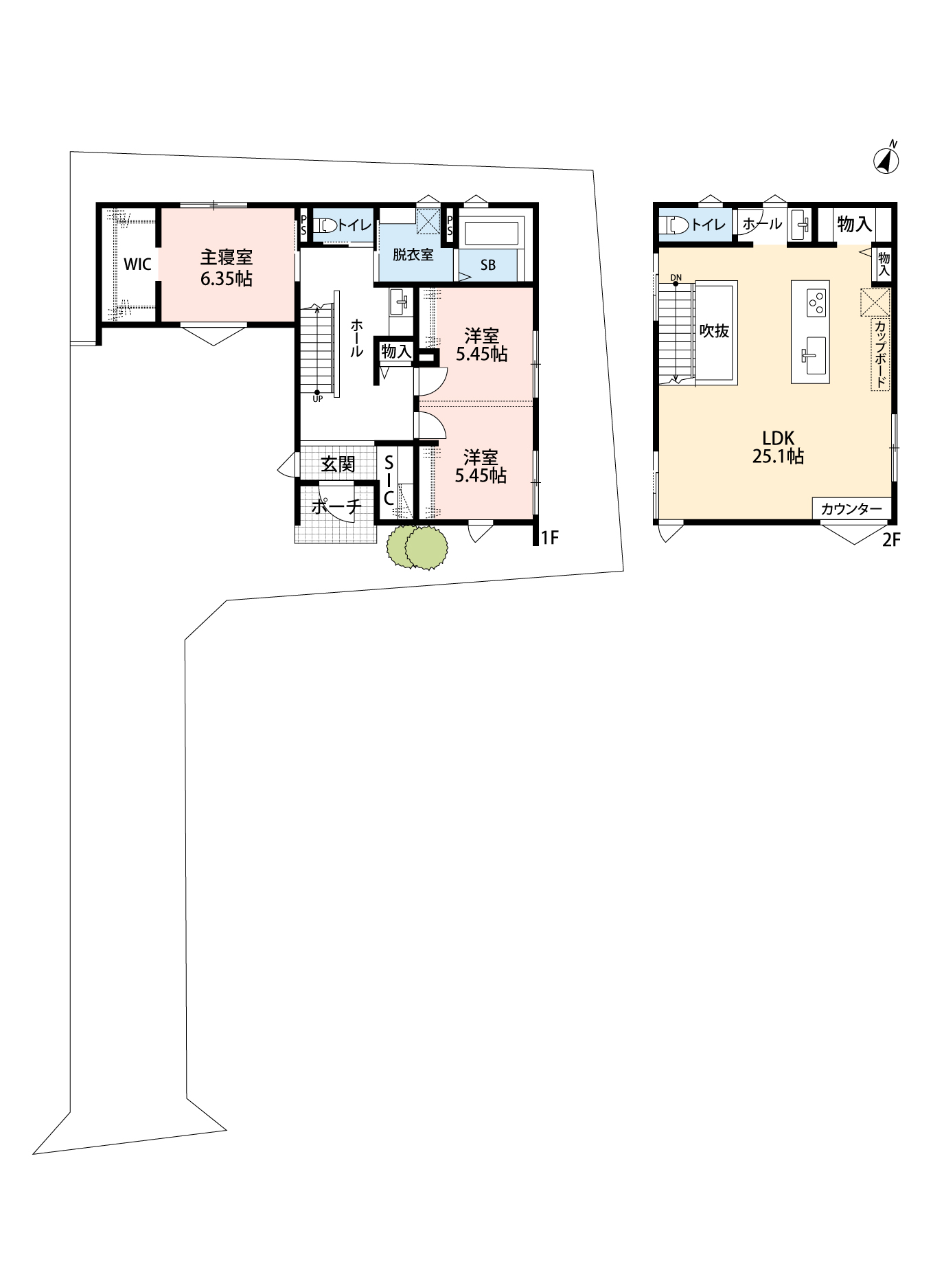
成松さん: 平川さん、よろしくお願いします。おっしゃる通り、こちらは道路から少し奥まった土地になります。一般的に日当たりが課題になりやすいのですが、その点を最大限プラスに変える設計を心がけました。具体的には、主要な生活空間であるリビングを2階に配置することで、周囲の建物の影響を受けにくい、明るく開放的な空間を実現しています。
平川: なるほど!だから2階リビングなんですね。外観も黒を基調とされていて、非常にスタイリッシュです。
成松さん: ありがとうございます。黒系の外壁でシックにまとめ、飽きのこないデザインを目指しました。また、都市部では駐車スペースも重要なポイントです。こちらでは縦列駐車を含めて4台分のスペースを確保し、来客時にも対応できる実用性を兼ね備えています。


設計のこだわり②
落ち着いた高級感と、家族に寄り添う生活動線
平川: 次に内観についてお伺いします。中に入ると、外観のシャープな印象とはまた違った、落ち着いた雰囲気に驚きました。
成松さん: 内観は、グレーの色味を効果的に使い、ホテルライクで高級感のある空間を演出しました。家で過ごす時間が、より豊かで心地よいものになるようにと考えました。
平川: 収納がとても多いのも印象的です。特に玄関横のシューズインクローゼット(SIC)は魅力的ですね。
成松さん: はい、収納量はこだわった部分です。SICをはじめ、各所に十分な収納を設けることで、常にスッキリとした空間を保てるようにしています。また、1階に主寝室や子供部屋、そして水廻りを集約させました。これにより、将来的な生活スタイルの変化にも対応でき、長く快適に暮らせる間取りになっています。エアコンも各部屋に計4台設置し、どの季節も快適に過ごせるよう配慮しています。



設計のこだわり③
圧巻の無柱大空間!家族が心地よく集う2階リビング
平川: そして何と言っても、この2階リビングの開放感は素晴らしいですね!柱が一本もない、本当に広々とした空間です。何か特別な技術が使われているのでしょうか?
成松さん: よくお気づきで。この大空間は、ある2つの技術を組み合わせることで実現しています。私たちはこのリビングを、家族だけの特別な空間という想いを込めて「フォート」(砦(とりで))と呼んでいるのですが、その土台となっているのが『トラス構造』と『メーターモジュール』設計です。
平川: 『トラス構造』と『メーターモジュール』ですか!それぞれが、どのようにこの大空間に繋がっているのか、もう少し詳しく教えていただけますか?
成松さん: はい。まず『トラス構造』というのは、三角形を基本単位として部材を組み合わせた骨組みのことで、橋などにも使われる軽量かつ非常に丈夫な構造体です。このトラス構造を屋根などに用いることで、室内に柱を立てることなく、広々とした空間を支えることができるんです。
平川: なるほど、強い骨組みで柱をなくしているのですね!では、『メーターモジュール』というのは?
成松さん: 『メーターモジュール』は、設計の基本単位を1mにすることです。日本の住宅で一般的な91cmの基準(尺モジュール)よりもゆとりが生まれるため、廊下や空間全体が広くなります。このトラス構造とメーターモジュールを組み合わせることで、強度と広さの両方を兼ね備えた、圧巻の無柱大空間が生まれるのです。
平川: よく分かりました!だからこんなに開放的なんですね。窓の配置も絶妙で、光は入るのに外からの視線は全く気になりません。
成松さん: ありがとうございます。住宅密集地だからこそ、窓から見える景色、つまり「視線の抜け」を徹底的に計算しました。同時に、外からの視線をカットすることで、プライバシーを守り、カーテンを開けたままでも心地よく過ごせるリビングになっています。


設計士からのメッセージ
平川: 最後に、これから家づくりをされる方へメッセージをお願いします。
成松さん: 家づくりには、様々な土地の条件やご家族の希望があります。一見、デメリットに思えるような条件でも、設計の工夫次第で唯一無二の魅力に変えることができます。私たちは、お客様一人ひとりのライフスタイルに寄り添い、デザイン性と機能性を両立させた、本当に心地よいと思える空間をご提案することを大切にしています。ぜひ、皆様の理想の暮らしをお聞かせください!
平川: 成松さん、本日は貴重なお話をありがとうございました。土地の特性を読み解き、それを最大限に活かす設計の力に感銘を受けました。黒い外観の“砦”に守られた、家族だけの特別なリビング。本当に素敵な住まいでした!
建売住宅 完成見学会のお知らせ
【シリーズ第2弾、いかがでしたか?】
今回のインタビューは、ご好評いただいている企画【設計士の頭を覗いてみた】シリーズの第2弾としてお届けしました!
今後も定期的に、様々な設計士のこだわりや家づくりの裏側を覗いていきます!
その他の【設計士の頭を覗いてみた】シリーズはコチラからご覧ください!
インタビューでご紹介した、こだわりと想いが詰まった新しい建売住宅。 完成見学会を下記の日程で開催いたします!
開催日: 10月25日(土)~ 11月3日(祝・月)
場所: 熊本市東区長嶺西3丁目建売住宅
完成見学会詳細: https://www.anesis.co.jp/fair/24548/
また、特別にLINE登録者の方には 10月18日(土)~ 10月19日(日)に先行見学会を開催いたします。
お家づくりご検討の方はぜひご登録お願いいたします!
次回の更新もお楽しみに!

.png)