見学予約・お問い合わせはこちら

096-388-1822

9:00-17:30 水曜定休日

アネシスオーナー様はこちらから
(メンテナンスのご相談等)

0120-24-3810

EVENT
イベント情報

【菊陽町原水】建売住宅2棟完成見学会 11/29(土) – 12/7(日)

【菊陽町原水】建売住宅2棟完成見学会 11/29(土) – 12/7(日)

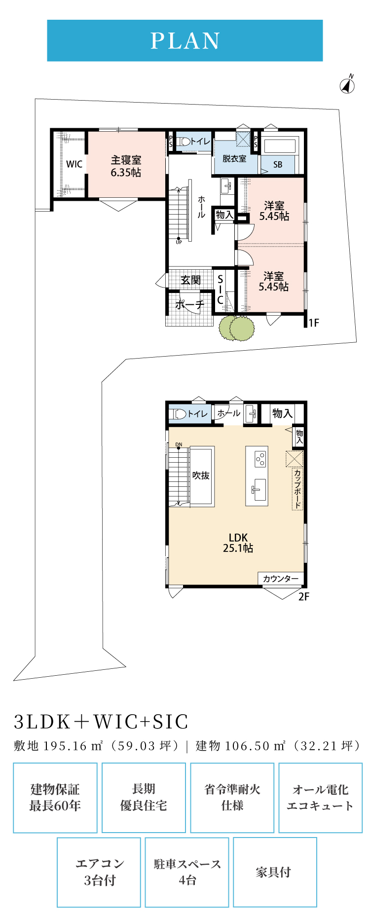
菊陽町原水1・2号地 建売住宅 現地map


~~~~~~~~~~~~~~~~~~~~~~~~~~~~~~

【イベント詳細】

《日程》
11/29(土)~  12/7(日)見学予約受付中

《時間》
9:00~17:00  ※17時以降のご相談・ご見学希望の場合は事前にご相談ください

ページ下ご予約フォーム もしくは お電話 096-388-1822 まで

 

※当日のご相談・ご見学も可能です。

※平日のご見学希望の方は、お電話にてその旨お知らせください。

※ご案内は予約優先制とさせて頂いております。

予約なしのご来場も可能ですが、水曜やスタッフ休憩時など、すぐにご対応できかねる場合がありますので、事前のご予約をお勧めします。

お電話でのお問い合わせ
096-388-1822096-388-1822
[営業時間]9:00~17:30 水曜定休日

1分で入力完了!

入力内容をご確認の上、送信ボタンを押してください。

お名前必須

電話番号必須

メールアドレス必須

見学希望日時必須


お問い合わせ

プライバシーポリシー」に同意の上、
入力内容を確認しました。

イベント一覧を見る

CONTACT

お電話でのお問い合わせ
096-388-1822 096-388-1822
[営業時間]9:00~17:30 水曜定休日

電話をする

見学予約