見学予約・お問い合わせはこちら

096-388-1822

9:00-17:30 水曜定休日

アネシスオーナー様はこちらから
(メンテナンスのご相談等)

0120-24-3810

【建売住宅】長嶺西3丁目2期1号地

【建売住宅】長嶺西3丁目2期1号地

3LDK+SIC+WIC

託麻西小学校│西原中学校

見学予約をする 資料請求をする

CONCEPT

周囲の視線を気にせず、プライベートな空間を大切にした二階リビングの住まい。一階に居室と水廻りを設け、使いやすい家事動線と、無柱の大空間で叶える開放感を両立。敷地の特性を活かし、縦列駐車含め計4台駐車可能なスマートな駐車計画も魅力です。大きな窓から光が満ちるリビングは、内と外が一体となり、心身ともにリラックスできる安らぎの空間。デザイン性と機能性を兼ね備えた、二階リビングの新しい暮らしを提案します。

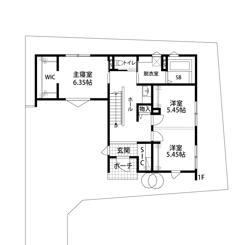
PLAN

【建売住宅】長嶺西3丁目2期1号地

【建売住宅】長嶺西3丁目2期1号地

敷地面積195.16㎡(59.03坪)│延床面積106.50㎡(32.21坪)

販売価格 4,598万円(税込)

POINT

  • ポイント画像

    【オンリーワンの外観デザイン】
    「どこにでもある家」ではなく「この場所にしかない家」一棟一棟、土地の特性を活かした設計と街並みに映える洗練された外観をデザインしています。

  • ポイント画像

    【暮らしやすさを追求したプロの設計】
    プロの設計士が、家事楽な間取りから家具・照明に至るまで一貫してデザイン。注文住宅で培った『あったらいいな』を建売住宅で形にしています。

  • ポイント画像

    【家具付き】
    プロのインテリアコーディネーターによって選定・配置された家具は、空間に合わせた統一感のあるデザイン。注文住宅を多く扱うアネシスだからこそ建売住宅でも理想の暮らしが叶えられる。

  • ポイント画像

    【メンテナンスサポートの充実】
    定期点検、60サポート(最長60年の保証制度)、24時間オーナー様専用ダイヤル、災害対応など、住んだ後も安心して暮らしていただけます。

YouTube

見学予約をする 資料請求をする

周辺環境

  • さくら幼稚園

    さくら幼稚園約730m

  • つばめこども園

    つばめこども園約980m

  • 託麻西小学校

    託麻西小学校約980m

  • 西原中学校

    西原中学校約1,630m

  • 飯田歯科医院

    飯田歯科医院約300m

  • 熊本長嶺郵便局

    熊本長嶺郵便局約340m

  • 肥後銀行 長嶺支店

    肥後銀行 長嶺支店約420m

  • 前田胃腸内科クリニック

    前田胃腸内科クリニック約530m

  • マックスバリュ 長嶺店

    マックスバリュ 長嶺店約320m

  • セブンイレブン 長嶺東1丁目店

    セブンイレブン 長嶺東1丁目店約330m

  • シュロアモール長嶺

    シュロアモール長嶺約840m

  • コスモス 長嶺店

    コスモス 長嶺店約850m

物件概要

●団地名称:長嶺西3丁目2期●所在地:熊本市東区長嶺西3丁目2181-1●交通:都市バス 「長嶺四ツ角」バス停徒歩約4分●総区画数:1区画●販売区画数:1区画●電気:九州電力●ガス:プロパンガス●水道:公共上水道●排水(汚水・雑排水):公共下水道●排水(雨水):浸透式●地目:宅地●都市計画:市街化区域●用途地域:第1種中高層住居専用地域●建ぺい率:60%●容積率:150%●道路幅員:公道:約4.0m●取引形態:売主●売主:株式会社アネシス●諸費用:水道加入金:73,000円(一時金)・下水道受益者負担金:200円/㎡(一時金)、杭工事費未定●特記事項:建築条件付き分譲地になりますので、3ヶ月以内に建築請負契約を締結していただくことを条件として販売いたします。外構工事費用・地盤調査費用も建築工事請負工事代金に含みます。地盤調査の結果で土地改良工事費用が発生する場合がございます。

MAP

※詳しい場所はお問い合わせください。

タイトル装飾

とってもお得な見学予約の
3つのメリット

タイトル装飾

  • お得な価格で購入できる

    1.

    ご都合に合わせて
    混雑を気にせずご来場できます。

  • 家具一式付き!

    2.

    聞きたい事やご相談内容を
    事前に伝えられます。

  • 実際の生活イメージができる

    3.

    待ち時間なく優先的に
    ご案内できます。

見学予約はこちら

【建売住宅】長嶺西3丁目2期1号地
の見学予約です。

お電話でのお問い合わせ
096-388-1822096-388-1822
[営業時間]9:00~17:30 水曜定休日

入力内容をご確認の上、送信ボタンを押してください。

お名前必須

電話番号必須

メールアドレス必須

ご年齢必須

見学希望日時必須


お問い合わせ

プライバシーポリシー」に同意の上、
入力内容を確認しました。

CONTACT

お電話でのお問い合わせ
096-388-1822 096-388-1822
[営業時間]9:00~17:30 水曜定休日

電話をする

見学予約

資料請求・お問合せはLINEが便利!友だち追加はこちら 資料請求・お問合せはLINEが便利!友だち追加はこちら